Жизнь прихода
Утвержден проект будущего храма-часовни
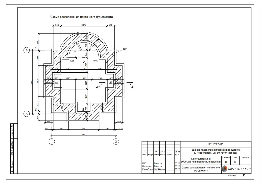
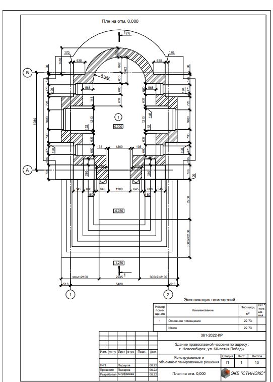
Митрополит Новосибирский и Бердский Никодим утвердил представленный ему проект часовни святых Петра и Февронии Муромских в п. Озерный Новосибирской области.
Его Высокопреосвященство внимательно рассмотрел проект и утвердил его с единственной поправкой - необходимо выделить алтарную часть для возможности совершения полноценных богослужений и таинств Православной Церкви. Таким образом, часовня перестаёт быть таковой и становится храмом-часовней, как в последнее время принято называть совсем небольшие по размеру храму, фактически часовни, имеющие алтарь.
Благодарим Высокопреосвященнейшего Владыку за утверждение проекта!
Все новости раздела
Его Высокопреосвященство внимательно рассмотрел проект и утвердил его с единственной поправкой - необходимо выделить алтарную часть для возможности совершения полноценных богослужений и таинств Православной Церкви. Таким образом, часовня перестаёт быть таковой и становится храмом-часовней, как в последнее время принято называть совсем небольшие по размеру храму, фактически часовни, имеющие алтарь.
Благодарим Высокопреосвященнейшего Владыку за утверждение проекта!
Меню раздела
Другие новости раздела
Урок о православной книге состоялся в детской Воскресной группе
15 марта, ко Дню православной книги, у учащихся Воскресной группы Прихода состоялось увлекательное занятие, которое провела Е. В. Чебакова. Дети узнали много нового, листали древнюю книгу и прошли мастер-класс по написанию буквиц перьевой ручкой.
Главой Новосибирской митрополии назначен епископ Балаковский и Николаевский Варфоломей
12 марта 2026 года на заседании Священного Синода (журнал № 9) постановили: Преосвященным Новосибирским и Бердским, главой Новосибирской митрополии, быть Преосвященному епископу Балаковскому и Николаевскому Варфоломею.
Популярные новости
Богослужение в первый день Великого поста
23 февраля, в понедельник, настоятель храма-часовни иерей Александр Сахненко совершил Великое повечерие с чтением первой части Великого покаянного канона, а также литию по усопшим с особым поминовением почивших воинов.
Литургия Преждеосвященных Даров - 2026
В пятницу первой седмицы Великого поста в храма-часовне святых благоверных князей была совершена Вечерня с Литургией Преждеосвященных Даров. В конце богослужения был совершен молебен великомученику Феодору Тирону и освящено коливо.


.jpg)




